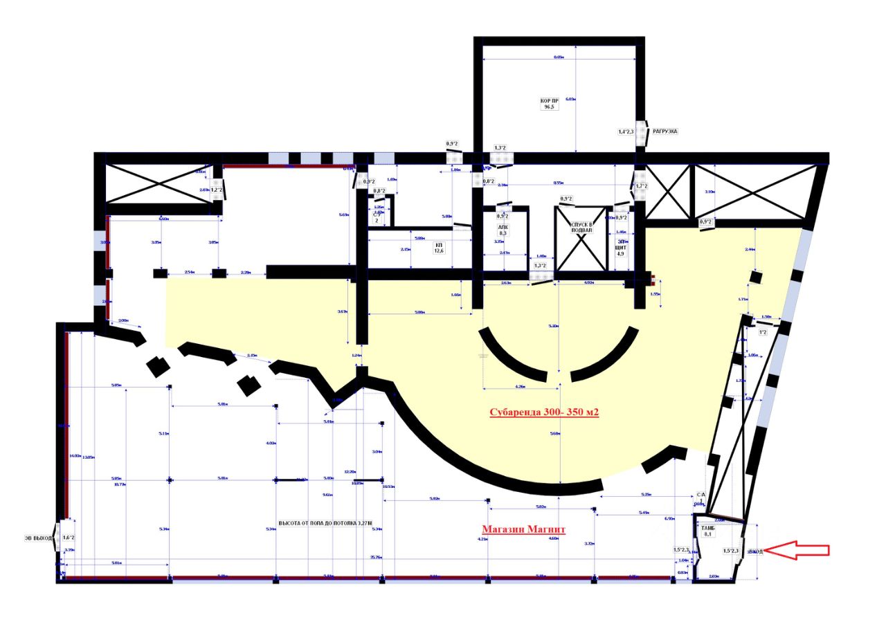
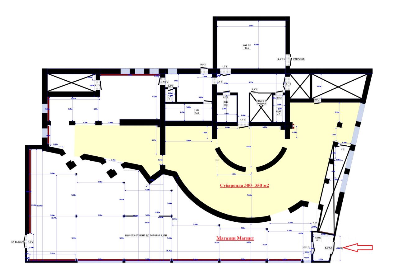
Сдается торговая площадь (помещение) по адресу г.Орск, пр-кт Ленина, 124 ( АО Тандер ). Помещение расположено на 1 этаже магазина Магнит. Площадь до 220 м2. Стоимость в процессе переговоров (согласно тарификатора, в зависимости от вида деятельности и площади).